THÔNG TIN DỰ ÁN

MẶT BẰNG VINHOMES OCEAN PARK 2 - THE EMPIRE

Tổng thể mặt bằng Vinhomes Ocean Park 2 – The Empire Hưng Yên, mặt bằng quy hoạch các phân khu và thiết kế chi tiết các loại hình sản phẩm là điều mà anh/chị đang muốn tìm hiểu? Bài viết dưới đây sẽ cung cấp đầy đủ những thông mới nhất về “mặt bằng Vinhomes Ocean Park 2 – The Empire” được cập nhật trực tiếp từ Chủ đầu tư.

Phối cảnh dự án Vinhomes Ocean Park 2 - The Empire

Mặt bằng tổng thể dự án Vinhomes Ocean Park 2 The Empire

Mặt bằng Vinhomes Ocean Park 2 – The Empire Hưng Yên được quy hoạch trên tổng diện tích đất 458 ha thuộc địa phận của 2 xã Long Hưng & Nghĩa Trụ, huyện Văn Giang, tỉnh Hưng Yên. Vị trí quy hoạch của dự án gần với các trục giao thông huyết mạch là tuyến đường 5B cao tốc Hà Nội – Hải Phòng, đường vành đai 35 kết nối trung tâm thành phố Hà Nội.

Với mật độ xây dựng chỉ 19%, Vinhomes Ocean Park 2 The Empire được quy hoạch hệ thống tiện ích và cảnh quan đồ sộ bậc nhất hiện nay. Điểm nhấn là: Công viên Royal Wave Park rộng tới 18ha, tổ hợp biển tạo sóng 5,4ha lớn nhất thế giới và Hồ nước mặn Laguna 9,3ha lớn nhất Châu Á.

  • Tổng diện tích: 458ha
  • Tổng vốn đầu tư: 38.000 tỷ đồng
  • Mật độ xây dựng: 19%
  • Đất công trình giáo dục: 23ha
  • Đất bệnh viện: 3ha
  • Diện tích tích mặt nước, hồ cảnh quan: 30ha
  • Diện tích cây xanh: 42ha
  • Loại hình sản phẩm: Biệt thự, liền kề, shophouse và căn hộ
Quy hoạch tổng thể mặt bằng Vinhomes Ocean Park 2 The Empire

Mặt bằng thấp tầng Vinhomes Ocean Park 2 – The Empire

Thấp tầng Vinhomes Ocean Park 2 The Empire được chia làm 8 phân khu khác nhau với 8 phong cách thiết kế được lấy cảm hứng từ các thành phố phát triển nổi tiếng trên thế giới, mang những vẻ đẹp và dấu ấn thiết kế riêng biệt, đáp ứng gu thẩm mỹ và nhu cầu sử dụng đa dạng của các cư dân tinh hoa.

Mặt bằng phân khu Chà Là

Phân khu Chà Là Vinhomes Ocean Park 2 – The Empire là phân khu được mở bán đầu tiên tại dự án, tổng diện tích 26,5 ha với 1862 căn thấp tầng có diện tích đa dạng. Toàn bộ phân khu được thiết kế theo phong cách Đông Dương với các chi tiết vòm, đối xứng, bán nguyệt hoặc Ovan khiến toàn bộ phân khu trở nên sang trọng, đẳng cấp.

  • Diện tích: 26,5m2
  • Số lượng: 1802 căn thấp tầng
  • Bao gồm 15 dãy: từ Chà Là 01 đến Chà Là 15
  • Tiện ích nội khu: 3 công viên nội khu chủ đề.

>> Xem chi tiết phân khu Chà Là

Mặt bằng phân khu Cọ Xanh

Phân khu Cọ Xanh Vinhomes Ocean Park 2 – The Empire là phân khu mở, được lấy cảm hứng thiết kế từ thành phố biển Miami, bang Florida – Mỹ với điểm nhấn là 2 công viên nội khu: công viên The Wave Island và công viên Green Oasis.

Đây cũng là một trong hai phân khu có số lượng sản phẩm đa dạng và đồ sộ nhất dự án, quy tụ đầy đủ các loại hình bất động sản có trong dự án Vinhomes Ocean Park 2 – The Empire Hưng Yên như: Shophouse, Liền kề, Biệt thự đơn lập, Biệt thự song lập. Trong đó Shophouse chiếm số lượng rất ít.

  • Diện tích: 37ha
  • Số lượng: 2362 căn thấp tầng
  • Bảo gồm 19 dãy: Cọ Xanh 01 đến Cọ Xanh 19

>>> Xem chi tiết phân khu Cọ Xanh

Mặt bằng phân khu Sao Biển

Sao Biển cũng là phân khu có diện tích lớn nhất tại dự án Vinhomes Ocean Park 2 – The Empire Hưng Yên lên đến 35ha, gồm 2402 căn thấp tầng. Khác với những phân khu khác, các sản phẩm tại phân khu Sao Biển chủ yếu là Shophouse, với phong cách kiến trúc hiện đại rất thích hợp cho việc phát triển kinh doanh lâu dài.

  • Diện tích xây dựng: 35ha
  • Số lượng sản phẩm: 2402 căn thấp tầng
  • Bao gồm 10 dãy: Sao Biển 01 đến Sao Biển 10

>>> Xem chi tiết phân khu Sao Biển

Mặt bằng phân khu Đảo Dừa

Đảo Dừa là phân khu biệt thự khép kín ven sông thượng lưu đẳng cấp nhất dự án. Sở hữu phong cách thiết kế ấn tượng và chuỗi tiện ích hạng sang khép kín dành cho cư dân nơi đây, mang đến đặc quyền trải nghiệm sống thượng, nâng tầm giá trị của chủ sở hữu.

  • Diện tích phân khu: 24.6 ha
  • Số lượng: 1461 căn thấp tầng
  • Loại hình sản phẩm: Shophouse, liền kề, biệt thự đơn lập, biệt thự song lập.
  • Bao gôm 9 dãy: từ Đảo Dừa 01 đến Đảo Dừa 09

>>> Xem chi tiết phân khu Đảo Dừa

Mặt bằng phân khu Hải Âu

Hải Âu là phân khu mở (không kiểm soát ra vào) và là một trong hai phân khu ra mắt đầu tiên tại dự án Vinhomes The Empire. Phân khu Hải Âu biểu tượng cho sự phóng khoáng và thanh lịch, các căn thấp tầng tại phân khu sẽ có hơi hướng của kiến trúc Địa Trung Hải.

  • Diện tích: 21,5ha
  • Số lượng: 1372 căn thấp tầng
  • Bao gồm 10 dãy: từ Hải Âu 01 đến Hải Âu 10
  • Sản phẩm phát triển: Biệt thự, shophouse, liền kề

>>> Xem chi tiết phân khu Hải Âu

Mặt bằng phân khu San Hô

San Hô là một trong ba phân khu mở sầm uất bậc nhất tại dự án, có diện tích lên tới diện tích 39 ha. Phân khu San Hô Vinhomes The Empire là biểu tượng cảnh quan phóng khoáng lấy cảm hứng từ vườn san hô với các điểm nhấn nổi bật như artwork biểu tượng San hô, bể bơi hoạ tiết sóng biển, quảng trường Viễn chinh,…vv

  • Diện tích: khoảng 36,88 ha.
  • Số lượng: 2.168 căn thấp tầng.
  • Sản phẩm phát triển: Biệt thự, liền kề và shophouse.

>>> Xem chi tiết phân khu San Hô

Mặt bằng phân khu Kinh Đô Ánh Sáng

Kinh Đô Ánh Sáng được nhận định là phân khu thương mại trung tâm, sôi động nhất của dự án khi quy tụ nhiều ưu thế về vị trí – tiện ích – thiết kế. Tái hiện lại một kinh thành Paris hoa lệ, rực rỡ ngày đêm với những dãy nhà phố Pháp cổ trang nhã, quảng trường trung tâm với điểm nhấn là Tháp biểu tượng ánh sáng cao 50m và các bức tượng Thần tình yêu, Thần âm nhạc, thần Mặt trời, Thần Vệ nữ.

  • Diện tích: 24ha
  • Số lượng: 724 căn thấp tầng
  • Bảo gồm 8 dãy: từ Kinh đô 01 đến Kinh đô 08
  • Loại hình sản phẩm: Liền kề, biệt thự song lập và đơn lập.

>>> Xem chi tiết phân khu Kinh Đô Ánh Sáng

Mặt bằng phân khu Ngọc Trai

Phân Khu Ngọc Trai là khu biệt thự biệt lập được quy hoạch trên một vùng đảo nổi của đại dự án Vinhomes Ocean Park 2 – The Empire. Khu đảo này được đánh giá là vùng đất đế vương, sông nước bao quanh, tôn lên vị trí và đẳng cấp của chủ sở hữu.

Phân Khu Ngọc Trai gồm 6 nhánh và 1 đảo ở giữa:

  • Nhánh 1; 2 – Ngọc Trai 1
  • Nhánh 3;4 – Ngọc Trai 2
  • Nhánh 5;6 – Ngọc Trai 3
  • Đảo giữa – Ngọc Trai

>>> Xem chi tiết phân khu Ngọc Trai

Mặt bằng cao tầng Vinhomes Ocean Park 2 The Empire

Khu cao tầng Vinhomes Ocean park 2 The Empire gồm 24 tòa chung cư được thiết kế tập trung ở hai phân khu Sao Biển và San Hô. Các tòa chung cư nằm bao quanh các công viên lớn nên có tầm view rất thoáng đãng. Đặc biệt là ở phân khu San Hô thì toàn bộ 15 tòa chung cư nằm bao quanh khu công viên Royal Wave Park.

Sở hữu vị trí cũng như tầm view tuyệt đẹp, chắc chắn các căn hộ chung cư tại dự án khi mở bán sẽ thu hút rất nhiều quý anh chị khách hàng và các nhà đầu tư.

Hiện tại, thông tin chia tiết về khu cao tầng Vinhomes Ocean park 2 The Empire vẫn chưa được Chủ đầu tư công bố . Tôi sẽ cập nhật thông tin mới nhất khi có thông tin chính thức từ Chủ đầu tư.

Mặt bằng thiết kế sản phẩm

Vinhomes Ocean Park sở hữu đầy đủ các loại hình nhà ở như: căn hộ chung cư, nhà liền kề, shophouse thương mại, biệt thự đơn lập, biệt thự song lập và biệt thự tứ lập.

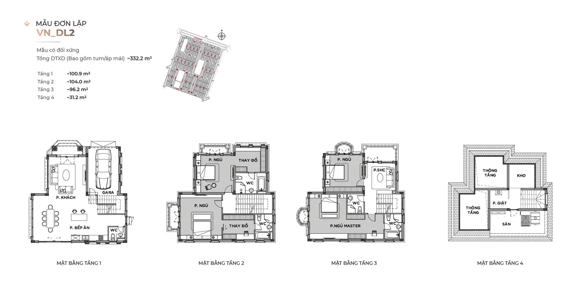
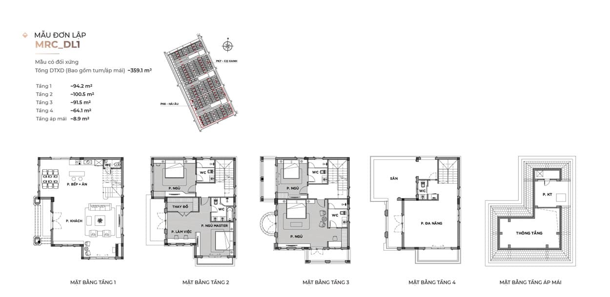
Mặt bằng thiết kế biệt thự đơn lập

Biệt thự Vinhomes Ocean Park 2 The Empire – căn đơn lập thường có diện tích dao động từ 300m2 đến 450m2, và được thiết kế bởi 5 tập đoàn kiến trúc danh tiếng hàng đầu thế giới.

Mặt bằng thiết kế biệt thự song lập

Biệt thự song lập Vinhomes Ocean Park 2 – The Empire có diện tích vừa phải (khoảng từ 250m2 đến 300m2), được thiết kế mang đậm phong vị Á Đông hay phong cách hiện đại pha nét cổ điển, với điểm nổi bật nằm ở lối thiết kế đối xứng từ cửa sổ, mái ngói đến cổng vào.

Với những khách hàng có mức tiền vừa phải và muốn ở những căn biệt thự đẳng cấp mang thương hiệu Vinhomes thì biệt thự song lập Vinhomes Ocean Park 2 The Empire là một sự lựa vô cùng chọn lý tưởng.

>>> Xem thêm về Biệt thự Vinhomes Ocean Park 2 – The Empire

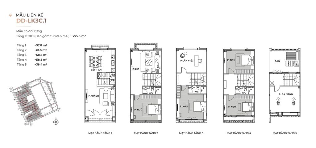
Mặt bằng thiết kế Nhà liền kề

Nhà liền kề Vinhomes Ocean Park 2 The Empire có diện tích từ 70m2 – 120m2, cao 4 tầng, đa phần được xây dưng theo phong cách châu Âu, những đường nét tinh tế, tỉ mỉ kết hợp phong cách tân cổ điển với đầy đủ yếu tố ánh sáng giúp tổng thể căn biệt thự liền kề khoác lên mình vẻ đẹp sang trọng, bắt mắt, tạo nên sự khác biệt xứng tầm chủ nhân.

>>> Xem thêm về Liền kề Vinhomes Ocean Park 2 The Empire

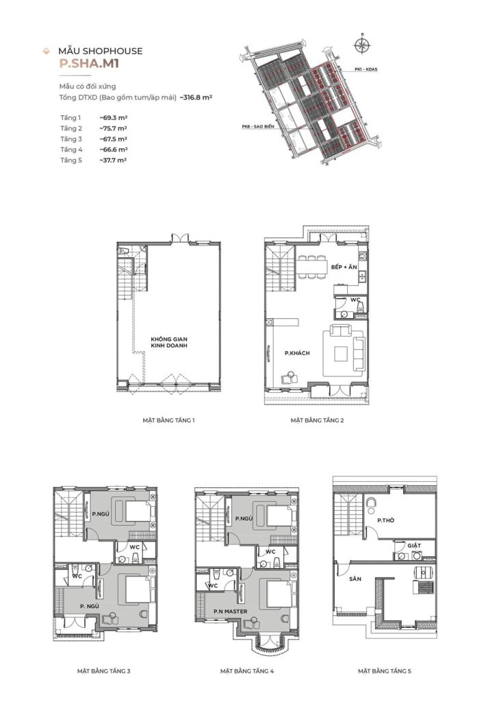
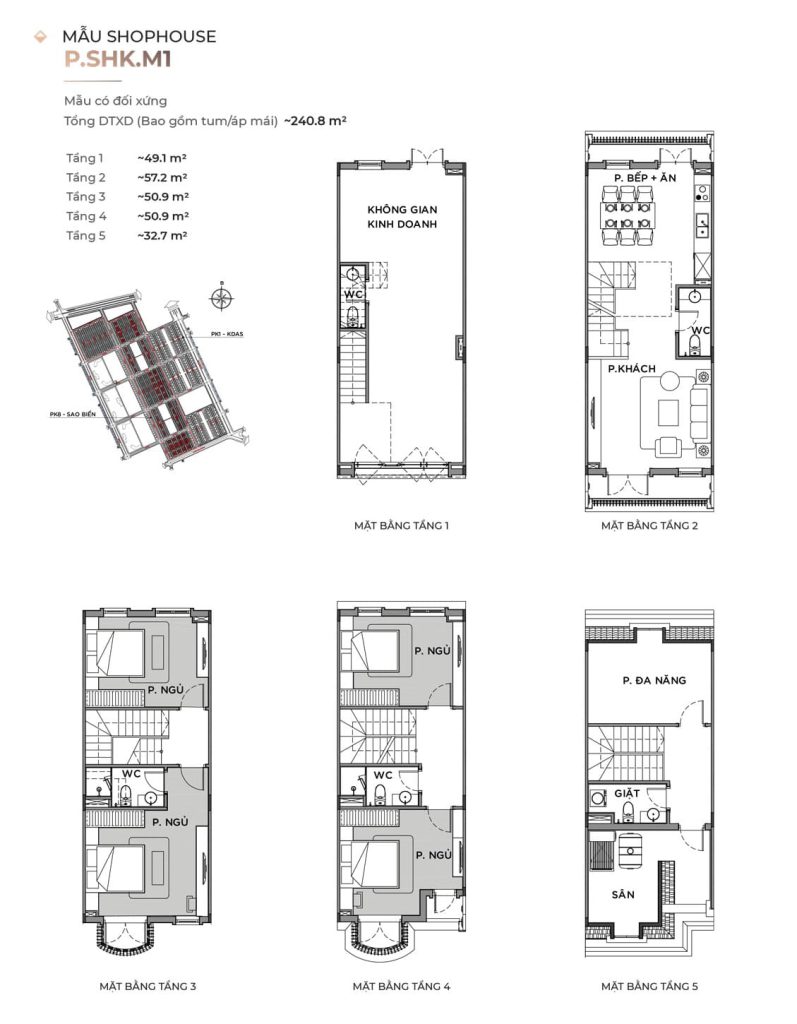
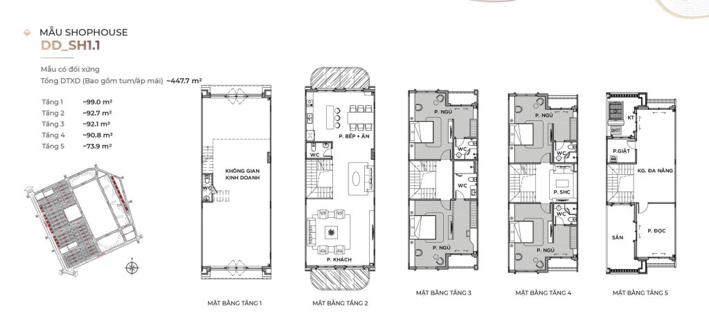
Mặt bằng thiết kế Shophouse thương mại

Shophouse Vinhomes Ocean Park 2 The Empire có diện tích từ 70m2 – 120m2, được xây dựng gồm 4 tầng cao. Trong đó tầng 1 và tầng 2 được dành riêng diện tích cho không gian kinh doanh. Hai tầng này xây dựng thông thoáng lắp đặt kính ngoài mặt tiền trong suốt tạo điều kiện tối ưu cho việc phục vụ kinh doanh.

>>> Xem thêm về Shophouse Vinhomes Ocean Park 2 The Empire