Kinh Đô Ánh Sáng Vinhomes Ocean Park 2 – The Empire Hưng Yên được nhận định là phân khu thương mại trung tâm, sôi động nhất của dự án khi quy tụ nhiều ưu thế về vị trí – tiện ích – thiết kế. Hứa hẹn mở ra những cơ hội đầu tư sinh lời hấp dẫn cho những người nhạy bén bắt sóng đầu tư.
Bài viết dưới đây sẽ giúp anh/chị hiểu rõ hơn về vị trí, mặt bằng, chi tiết thiết kế các loại hình sản phẩm cũng như giá bán tại phân khu Kinh Đô Ánh Sáng Vinhomes Ocean Park 2 – The Empire Hưng Yên.
Tổng quan về phân khu Kinh Đô Ánh Sáng
Phân khu Kinh đô ánh sáng Vinhomes Ocean Park 2 – The Empire là nơi tái hiện lại một kinh thành Paris hoa lệ, rực rỡ ngày đêm với những dãy nhà phố Pháp cổ trang nhã, quảng trường trung tâm với điểm nhấn là Tháp biểu tượng ánh sáng cao 50m và các bức tượng Thần tình yêu, Thần âm nhạc, thần Mặt trời, Thần Vệ nữ, …
-
- Diện tích: 24ha
- Số lượng: 724 căn thấp tầng
- Bảo gồm 8 dãy: từ Kinh đô 01 đến Kinh đô 08
- Loại hình sản phẩm: Liền kề, biệt thự song lập và đơn lập.

Vị trí phân khu Kinh đô ánh sáng Vinhomes Ocean Park 2 – The empire
Phân khu Kinh Đô Ánh Sáng Vinhomes Ocean Park 2 tọa lạc ngay vị trí trung tâm dự án, được bao quanh bởi các tuyến đường trục chính của dự án như đại lộ San Hô (51m) và đường Đại Dương (43m). Nhờ đó, cư dân phân khu có thể dễ dàng di chuyển đến các vùng nội khu khác của dự án.
Phân khu Kinh Đô Ánh Sáng sẽ xứng đáng là một phân khu trù phú bậc nhất cho hoạt động kinh tế giải trí tại Vinhomes Ocean Park 2 – The Empire Hưng Yên.
-
- Phía Đông Bắc:Tiếp giáp với phân khu San Hô
- Phía Tây Bắc: Tiếp giáp với trung tâm thương mại VinCom Mega Mall
- Phía Tây Nam: Tiếp giáp phân khu Sao Biển
- Phía Đông Nam: Đối diện phân khu Chà Là

Tiện ích phân khu Kinh đô ánh sáng Vinhomes Ocean Park 2
Sở hữu vị trí đắc địa “trung tâm dự án”, cư dân phân khu Kinh Đô Ánh Sáng sẽ được tận hưởng tiện ích của nhiều phân khu xung quanh. Thỏa mãn trọn vẹn nhu cầu sống, kinh doanh, mua sắm, giải trí, thư giãn và học tập của cư dân. Mang đến không gian sống lý tưởng, bắt kịp nhịp sống thế giới, thuận tiện cho cư dân nơi đây.
Các chuỗi tiện ích đẳng cấp, độc đáo tại phân khu Kinh Đô Ánh Sáng:
- Tứ trụ tiện ích: Vinhomes – Vincom- Vinmec – Vinschooll.
- Tuyến phố đi bộ dài hơn 1km – Đại lộ kinh đô ánh sáng Kingdom Avenue
- Quảng trường Empire Square và tháp điêu khắc biểu tượng Ánh sáng 30m.
- Royal Wave Park – Biển tạo sóng nhân tạo lớn nhất thế giới với quy mô 18ha.
- Bộ 3 công viên trung tâm Khải Hoàn, Ánh Sáng và Tình Yêu.
- Các khu vực sinh hoạt cộng đồng….

Mặt bằng tổng thể phân khu Kinh Đô Ánh Sáng
Phân khu Kinh Đô Ánh Sáng dự án Vinhomes Ocean Park 2 The Empire có quy mô diện tích là 24ha, với tổng số 724 căn thấp tầng. Chủ yếu là các căn Liền kề, Shophouse với diện tích đa dạng từ 50m2 – 160m2, mang đến nhiều lựa chọn cho khách hàng.
Phân khu Kinh Đô Ánh Sáng Vinhomes Ocean Park 2 – The Empire được chia làm 8 dãy (Kinh đô 01 – Kinh đô 8).

Các loại hình sản phẩm tại phân khu Kinh đô ánh sáng
Phân khu Kinh Đô Ánh Sáng Vinhomes Ocean Park 2 được xây dựng với đa dạng loại hình sản phẩm, bao gồm: nhà liền kề, shophouse, biệt thự đơn lập, biệt thự song lập.
Đặc biệt, các căn liền kề tại đây được thiết kế như Shophouse thực thụ, chủ nhân căn hộ có thể dễ dàng thay đổi mục đích sử dụng từ ở sang kinh doanh và thu lợi nhuận kép.
Các căn thấp tầng tại phân khu Kinh đô ánh sáng được thiết kế theo phong cách Pháp Cổ, pha lẫn nét cổ điển và sang trọng.

Với diện tích đa dạng, phù hợp với nhiều mức tài chính của khách hàng, vì vậy các sản phẩm tại phân khu Kinh đô ánh sáng dự kiến sẽ có tốc độ bán chạy nhất.
Biệt thự đơn lập phân khu Kinh Đô Ánh Sáng
Biệt thự đơn lập phân khu Kinh Đô Ánh Sáng Vinhomes Oceanparrk 2 – The Empire là loại hình căn hộ có số lượng ít nhất phân khu, được bố trí tại những vị trí đẹp nhất, đắc địa nhất, tạo nên giá trị vượt trội nhằm hướng đến đối tượng khách hàng thành đạt, hậu thuẫn kinh tế vững chắc.
-
- Diện tích mặt sàn: Từ 202m2 – 264m2
- Thiết kế xây dựng: 4 tầng 1 tum
- Số lượng căn: 28 căn
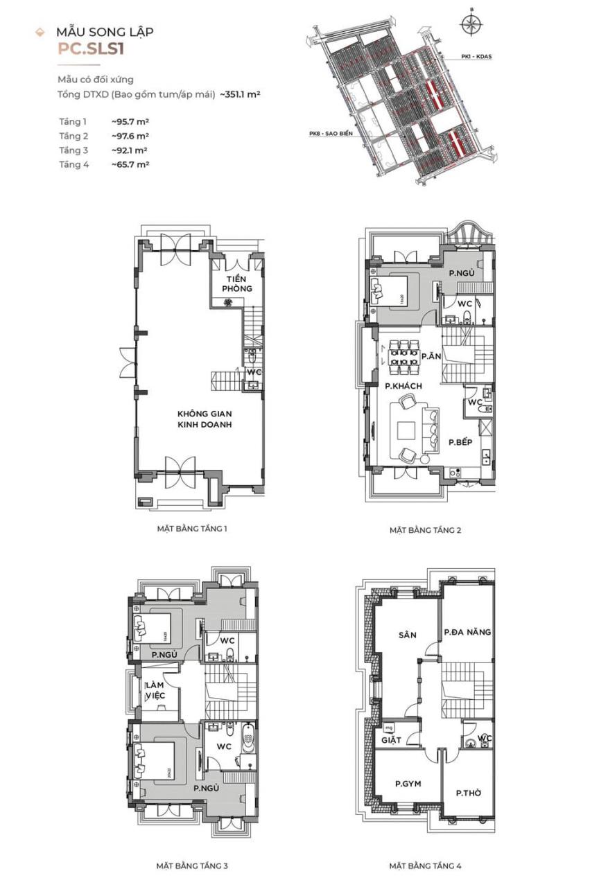
Biệt thự song lập phân khu Kinh Đô Ánh Sáng
Biệt thự Song lập phân khu Kinh Đô Ánh Sáng bao gồm 352 căn với diện tích dao động từ 150m2-238m2 được xây 4 tầng theo phong cách Pháp Cổ.

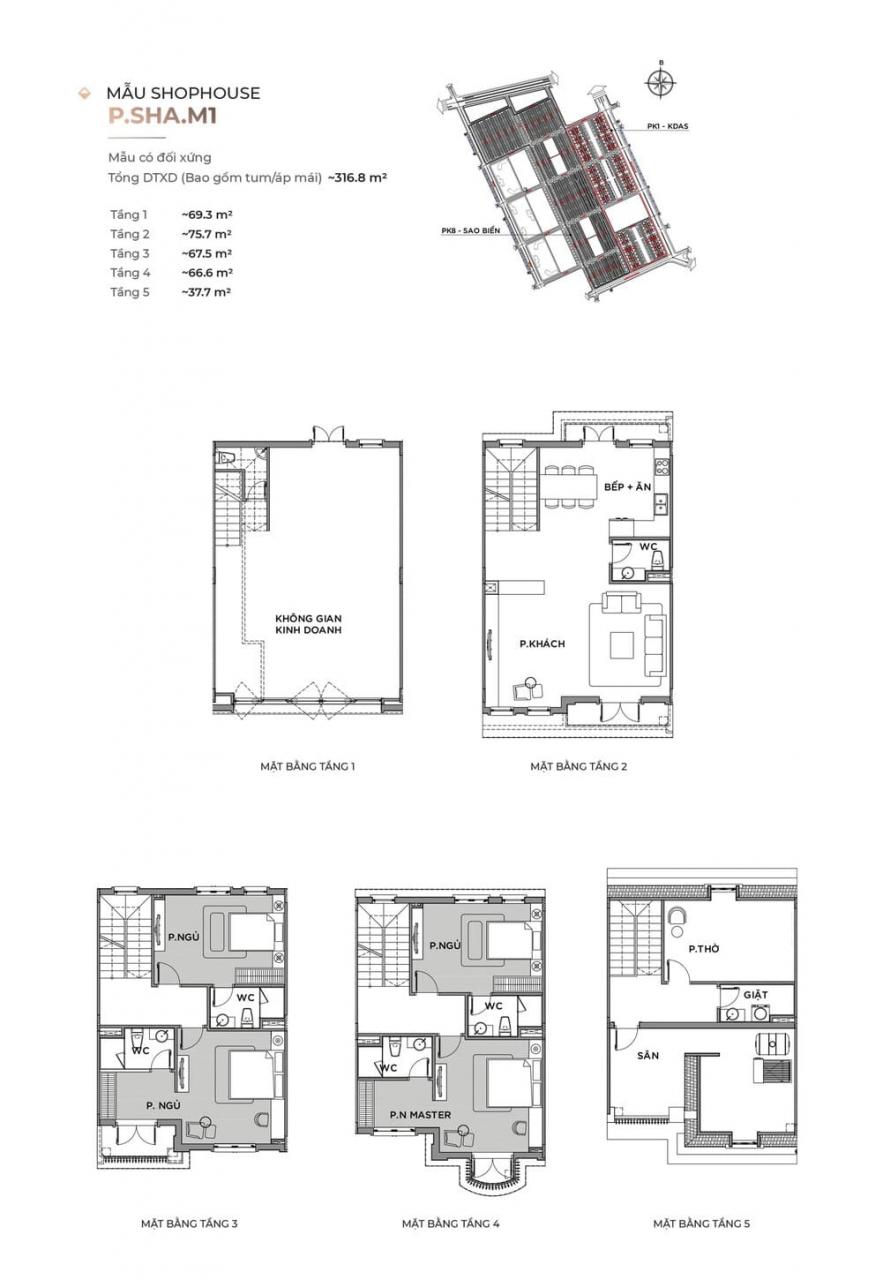
Shophouse & Liền kề phân khu Kinh Đô Ánh Sáng
Với diện tích đa dạng từ 84m2-160m2, phù hợp với nhiều mức tài chính của khách hàng, vì thế các căn shophouse và liền kề phân khu Kinh đô ánh sáng Vinhomes Ocean Park 2 – The Empire là loại hình được khách hàng tìm kiếm nhiều nhất tại dự án.
-
- Diện tích mặt sàn: Từ 84-160m2
- Thiết kế xây dựng: 4 tầng 1 tum
- Phong cách thiết kế: Phong cách Pháp Cổ

Chính sách bán hàng & Giá bán phân khu Kinh Đô Ánh Sáng
Chính sách bán hàng phân khu Kinh Đô Ánh Sáng Vinhomes Ocean Park 2 – The Empire:
- Tặng Voucher Vinfast trị giá 200.000.000 VNĐ
- Hỗ trợ vay vốn lên tới 70% GTHĐ
- HTLS 0% trong 12 tháng, ân hạn nợ gốc 24 tháng
- Chiết khấu 6,5%/năm – 9,5%/năm (tuỳ theo từng giai đoạn dự án)
Gián bán: Nhanh tay đăng ký vào Fomd bên dưới để nhận báo giá chi tiết các sản phẩm và chọn lô tại phân khu Kinh Đô Ánh Sáng Vinhomes Ocean Park 2 – The Empire Hưng Yên.
Kết luận:
Có thể đánh giá phân khu Kinh Đô Ánh Sáng trong tương lai sẽ là trái tim của dự án Vinhomes Ocean Park 2 – The Empire Hưng Yên, nơi tạo ra giá trị, đẳng cấp cho nhà đầu tư và tiềm năng phát triển kinh doanh đầy hứa hẹn.
Hy vọng rằng những thông tin trên đây đáp ứng đầy đủ được những thắc mắc và nhu cầu tìm hiểu về thông tin phân khu Kinh đô ánh sáng Vinhomes Ocean Park 2 – The Empire của anh/chị. Hãy đăng ký để nhận miễn phí tư vấn và thông tin dự án được cập mới nhất – liên tục, trực tiếp từ CĐT.
Dự tính lãi suất vay vốn ngân hàng
Lựa chọn thanh toán
(*)Vui lòng tải về file tiến độ thanh toán để xem đầy đủ hơn. Xin cảm ơn!






