Phân khu Sao Biển Vinhomes Ocean Park 2 – The Empire là một trong ba phân khu mở tại dự án, được đánh giá là phân khu sôi động nhất với 100% các căn thấp tầng đều dưới dạng Shophous.
Sở hữu những lợi thế về vị trí – cảnh quan – tiện ích thu hút sự quan tâm hàng đầu của giới đầu tư tinh anh, hứa hẹn tiềm năng tăng giá hoàn toàn đáp ứng được kỳ vọng dành cho các nhà đầu tư trong tương lai.
Tổng quan phân khu Sao Biển Vinhomes Ocean Park 2
Sao Biển cũng là phân khu có diện tích lớn nhất tại dự án Vinhomes Ocean Park 2 – The Empire Hưng Yên lên đến 35ha, gồm 2402 căn thấp tầng. Khác với những phân khu khác, các sản phẩm tại phân khu Sao Biển chủ yếu là Shophouse, với phong cách kiến trúc hiện đại rất thích hợp cho việc phát triển kinh doanh lâu dài.
-
- Diện tích xây dựng: 35ha
- Số lượng sản phẩm: 2402 căn thấp tầng
- Bao gồm 10 dãy: Sao Biển 01 đến Sao Biển 10

Vị trí phân khu Sao Biển Vinhomes Ocean Park 2
Phân khu Sao Biển Vinhomes Ocean Park 2 – The Empire nằm dọc hai bên tuyến phố đi bộ, gần với các trục đường chính 51m, 30m, 24m của dự án. Một bên là phân khu Kinh đô ánh sáng, một bên là cụm công viên chủ đề Empire Park, quảng trường trung tâm Empire Square,…
Phân khu Sao Biển là phân khu hoàn hảo nhất cho việc đầu tư cho thuê, kinh doanh buôn bán, bởi trong tương lai khi cụm căn hộ cao tầng với 9 toà căn hộ đi vào hoạt động sẽ mang đến nguồn khách hàng khổng lồ cho các shop kinh doanh tại phân khu này.

Tiện ích phân khu Sao Biển Vinhomes Ocean Park 2 – The Empire
Nằm trong lòng dự án Vinhomes Ocean Park 2 – The Empire Hưng Yên, phân khu Sao Biển được kế thừa trọn ven hệ thống tiện ích đa dạng, đẳng cấp của khu đô thị, nổi bật có thể kể đến như:
- Tứ trụ tiện ích: Vinhomes – Vincom- Vinmec – Vinschooll.
- Tuyến phố đi bộ dài hơn 1km – Đại lộ kinh đô ánh sáng Kingdom Avenue
- Quảng trường Empire Square và tháp điêu khắc biểu tượng Ánh sáng 30m.
- Royal Wave Park – Biển tạo sóng nhân tạo lớn nhất thế giới với quy mô 18ha.
- Bộ 3 công viên trung tâm Khải Hoàn, Ánh Sáng và Tình Yêu.
- Các khu vực sinh hoạt cộng đồng….

Mặt bằng phân khu Sao Biển Vinhomes Ocean Park 2 – The Empire
Phân khu Sao Biển Vinhomes Ocean Park 2 – The Empire được quy hoạch trên tổng diện tích 35ha, gồm 2402 căn thấp tầng, được chia làm 10 dãy (từ Sao biển 6 – Sao biển 15).
Phân khu Sao Biển có thêm 3 cụm cao tầng với 9 tòa chung cư, sở hữu view công viên nội khu và chuỗi tiện ích khép kín độc đáo. Tuy nhiên, thông tin chi tiết về 3 cụm cao tầng tại phân khu Sao Biển Vinhomes Ocean Park 2 – The Empire vẫn chưa được chủ đầu tư công bố. Chúng tôi sẽ cố gắng cập nhật tin tức trong thời gian sớm nhất.

Các loại hình sản phẩm tại phân khu Sao Biển
Đa phần sản phẩm tại phân khu Sao Biển Vinhomes Ocean Park 2 – The Empire Hưng Yên là các căn shophouse, liền kề, số ít còn lại là biệt thự song lập và đơn lập đắt giá. Trong đó, các căn shophouse phân khu Sao Biển được xây dựng theo dạng căn hộ 3 – 4 tầng giúp chủ nhân tối đa giá trị khai thác khi vừa có thể sử dụng dùng để ở vừa cho thuê hoặc kinh doanh.
Ngoài ra, các căn shophouse phân khu Sao Biển còn sở hữu mặt tiền lớn tiếp giáp các tuyến đường trục chính nội và ngoại khu dự án Vinhomes Ocean Park 2 – The Empire cùng không gian nội thất thông minh, phù hợp kinh doanh đa dạng ngành hàng.
Biệt thự đơn lập Sao Biển Vinhomes Ocean Park 2 – The Empire
Với số lượng ít nhất và nằm tại vị trí các căn góc, các căn biệt thự đơn lập có giá trị cao nhất cũng như trở thành những căn đẹp nhất toàn phân khu.Toàn bộ phân khu Sao Biển chỉ có duy nhất 8 căn biệt thự đơn lập chắc chắn sẽ trở thành những viên kim cương được các nhà đầu tư cực kỳ săn đón.
Biệt thự song lập Sao Biển Vinhomes Ocean Park 2 – The Empire
Phân khu Sao Biển có duy nhất 4 dãy biệt thự song lập bao gồm 3 dãy đối diện công viên Empire và một dãy mặt đường lớn Kinh Đô.Các căn biệt thự song lập có diện tích từ150-170m2 được thiết kế 4 tầng 1 tum với tầng 1 và tầng 2 thiết kế cửa kính thuận tiện cho việc kinh doanh buôn bán.
Sở hữu vị trí đắc địa khi ngay đối diện là công viên nội khu, các căn song lập nơi đây sẽ có tiềm năng kinh doanh cực kỳ mong đợi sẽ là một trong những lựa chọn khó có thể bỏ qua của những nhà đầu tư chuyên nghiệp.
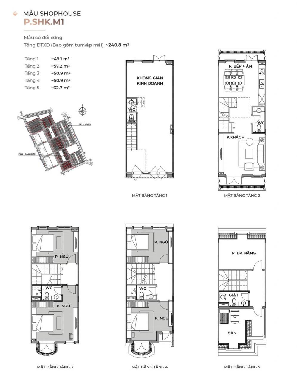
Shophouse phân khu Sao Biển Vinhomes Ocean Park 2 – The Empire
Shophouse loại hình đặc biệt luôn thu hút giới đầu tư quan tâm không chi tại đô thị Vinhomes Ocean Park 2 Hưng Yên mà với bất kỳ các đại đô thị của Vinhomes nào khác cũng đều được ưu chuộng.
Đặc biệt các căn Shophouse phân khu Sao Biển Vinhomes Ocean Park 2 được thiết kế tối ưu công năng sử dụng với tầng 1 và tầng 2 là cửa kính và không gian kinh doanh, tầng 3 và 4 với đầy đủ các phòng dành cho sinh hoạt.



Chính sách bán hàng phân khu Sao Biển Vinhomes Ocean Park 2 – The Empire
- Tặng Voucher Vinfast trị giá 200.000.000 VNĐ
- Chiết khấu 8%/năm cho khách hàng thanh toán trước hạn.
- Mức lãi suất 9,5%/năm cho giá trị TTĐC đảm bảo thực hiện HĐMB
- Hỗ trợ vay vốn lên tới 70% GTHĐ
- HTLS 0% trong 12 tháng
- Phí trả nợ trước hạn trong thời gian HTLS là 0%
Giá bán phân khu Sao Biển Vinhomes Ocean Park 2 – The Empire
Nhanh tay đăng ký vào Fomd bên dưới để nhận báo giá chi tiết các sản phẩm trực tiếp từ Chủ đầu tư và chọn lô đẹp tại phân khu Sao Biển Vinhomes Ocean Park 2 – The Empire Hưng Yên.
Lời kết:
Có thể thấy rằng, phân khu Sao Biển sẽ là một trong những phân khu cực kỳ tiềm năng dành cho các nhà đầu tư đang có dự định tìm hiểu tại dự án Vinhomes Ocean Park 2 – The Empire.
Hy vọng rằng những thông tin trên đây đáp ứng đầy đủ được những thắc mắc và nhu cầu tìm hiểu về thông tin phân khu Sao Biển Vinhomes Ocean Park 2 – The Empire của anh/chị. Hãy đăng ký để nhận miễn phí tư vấn và thông tin dự án được cập mới nhất – liên tục, trực tiếp từ Chủ đầu tư.
Dự tính lãi suất vay vốn ngân hàng
Lựa chọn thanh toán
(*)Vui lòng tải về file tiến độ thanh toán để xem đầy đủ hơn. Xin cảm ơn!






